MINUTES
6:45 – 6:46 pm Meeting Called to order (Vincent Chewning)
Neighborhood Association Updates
6:47 – 6:48 pm Treasurer’s Report (Adelina Mart)
- Paid $100 refundable deposit to use Missouri Foundation for Health building
6:48 – 6:49 pm PCD Development Committee Liaison
- Not present
6:50 – 7:51 pm PCD Infrastructure Committee Liaison
- Meeting was canceled
- Awaiting new exercise equipment at Chouteau Park
STL City Government Reports
6:51 – 7:05 pm Crime and Safety Report (Ed Slade, SLMPD Liaison)
- High festivities in the area in the coming weekends (June 22, June 29)
- Conclusion of June: Pride Parade downtown and high expectation of migration from downtown and TGP. Manchester is expected to be closed from Sarah to Taylor
- Have put together a detailed plan to include a contingency of officers to meet headcounts of the crowd
- Parking on Manchester is expected to be difficult
- 4 – 5 at gunpoint robberies in the past few weeks
- Cameras in the area have provided good descriptions.
- Most happened late a night, except for one at Manchester and Newstead
- Others were people walking to the cars after businesses have closed between 3 – 4am in the morning
- If you see something or having a problem, call 911.
- On The City’s Finest
- Main purpose is visibility and working in the heavy areas and times and along the outer areas of the neighborhood to thwart suspicious activities
7:05 – 7:08 pm Neighborhood Update (Ron Coleman, NIS)
- CID decides hours of when The City’s Finest will be out, based on crime data. They are police officers working second shifts.
- Have good camera images of suspects and want to get the images out there
- Requested FPSENA post a link to crime stoppers
- New: An active 311 number to contact City’s Service Bureau and dispatch any of the cities departments. Use this as your rolodex city hall number.
Guest Speakers and Discussion
7:08 – 7:20 pm Neighborhood Assistance Committee (NAC)
- Charter is still in process and has not been officially approved. The NA board has asked they provide their revisions for the board to approve.
- General Member is against PCD receiving home development funds as it is seen as a conflict of interest
- NAC wants to participate in the criteria and selection of who receives the funds
- Has requested to see the grants
- Will set up a meeting to allow the neighborhood people to participate and hopes to get back to us on what is said
- Passed out a paper “On Liberalism”: wants open communication among all groups within the neighborhood
- Wants a grievance reconciliation process and work with Ron Coleman’s office
- Reach out to Dan Scott if you have a question about the committee and to attend committee meetings. You can call: 314-614-7576
7:20 – 7:40 pm STL City Assessor’s Office and Q&A (Caroline Brethauer)
- City’s Assessor’s Office strives to value all property in a fair and uniform manner and to accurately identify, list and appraise all taxable property, including:
- Personal property
- Records and mapping
- Real property
- Every two years they re-assess property and look at:
- Lot size, property improvements, house age, wall material, condition of house, livable square footage, garage, number of bathrooms, finished basements, pulled permits
- Estimated value of your house is compared to neighborhood sales to align reviewed property with the market
- The appeal process: You should have received a notification to appeal if your property value went up. You will not have received one if the value of you home property went down. Appeals process: Board of Equalization -> state tax commission -> circuit court
- Exempt properties come from the state law level that are in-use properties of 501c3 nonprofits
- (map doesn’t include abated properties)
- (Coleman) Geo St. Louis (a guide to geospacial data in the City of St. Louis) was last updated in 2015 and they’re working on updating that information.
- Sites that were discussed:
- You can view the City Assessor’s presentation from the meeting below:
7:40 – 8:03 pm Possible Kingshighway Dev. Neighbor Group Update (M. Browning)
- Browning provided a transcript and powerpoint of his presentation, which is included below
Hello,
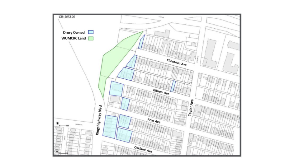
My name is Michael Browning. I am a part of a small group of neighborhood residents who became concerned about the development activity occurring on the northwest edge of our neighborhood. Specifically, we were concerned about the properties owned by the Drury Corporation, and the land that was owned by MODOT but is now owned by Washington University’s development corporation, WUMCRC, or Forest West Properties. You can see the properties in question on the maps that we have handed out. Drury in blue, WUMCRC in green.
First, to catch everyone up on where we are, a quick history of these properties:
- Starting over a decade ago in 2007, Drury Corporation began acquiring properties along Kingshighway and in the 4500 blocks of Arco, Gibson, and Chouteau Avenues.
- Their intention was to build one of their Drury branded hotels.
- A two-tower plan was presented to the neighborhood in 2008.
- Since that time, they have continued acquiring properties in that area, including several parcels purchased in the past few months.
- Many of their properties have been boarded up and left in various states of decay as part of a strategy of demolition by neglect.
- In March 2019, a six-family structure at 4559 Oakland succumbed to decay and collapsed, and the Drury Corporation tore it down.
- As recently as 2017, they have stated that they do not want to renovate their other properties because they might demolish those properties later.
- Last month, Landmarks Association conducted a survey of the buildings owned by Drury. 11 of their 26 properties are uninhabitable. 3 more are unoccupied.
As for the land owned by WUMCRC:
- This parcel of land was a mixture of Forest Park land and residential properties taken via eminent domain in the 1930s to create a parkway.
- It eventually came to be owned by MODOT when the parkway turned into a state highway.
- A large portion of the land became obsolete for MODOT with the removal of the cloverleaf exchange.
- WUMCRC purchased this land in September 2018.
- In June 2018, WUMCRC issued a Request for Qualifications to developers regarding this parcel.
- In March 2019, rumors started to spread that WUMCRC was in negotiations with the Drury Corporation.
Knowing Drury’s history in the neighborhood, and concerned for this large, extremely visible and representative area of FPSE, a number of residents started working together to gain more information about what was happening.
- We spoke with Alderman Roddy who recommended we speak with Hank Webber at WashU.
- We met with Hank Webber of WashU and Brian Phillips, of WUMCRC.
- They declined to share the proposals that they have received in response to the RFQ.
- They told us they have not yet selected a developer for their land.
- They confirmed that Drury Corporation is a finalist, and is one of ‘less than three’ viable proposals that they received.
- WUMCRC also listened to our suggestion that there should be a larger community engagement process than normal, due to the size of this land and its impact on the people of this neighborhood.
- They agreed, in principle, that there should be a “robust community engagement” process.
- WUMCRC referred us to Park Central Development to inquire about this process.
- A couple of residents met with Abdul of Park Central Development to make the case for a thoughtful, thorough neighborhood feedback process. That conversation is still ongoing.
The residents involved have been advocating for:
- A multi-part process to inform the development of this land.
- Ideally, there would be feedback from the community before Washington University selects a developer for this land.
- This would let WashU know a broader concept of what kind of development would be beneficial to the neighborhood, and would give a developer a chance to make a plan that would be agreeable to a majority of neighbors.
- After WashU has selected a developer, plans should be presented to the neighborhood and residents should have a chance to give feedback on specifics.
- Preferably this process would be facilitated by a third party to ensure impartiality. This would be similar to the process used to develop the neighborhood Form Based Code. Additionally, a third-party facilitator would be properly staffed and trained to handle neighborhood engagement in a way that reaches all interested residents in this neighborhood.
We want to see the neighborhood have a voice in this. We believe that the neighborhood should not be left in the dark when it comes to such a large development, one that impacts how we access Forest Park, the Central West End, the MetroLink, and serves as one of the most visible faces of our neighborhood. We think that the neighborhood deserves to have its voice heard, and that any developer should engage with the residents here and do its best to listen.
We’ve distributed cards for you to write questions or thoughts in case you don’t get a chance to speak. The neighborhood association has agreed to collect questions or concerns you might have and forward them to the appropriate people. We will also revisit this topic in coming meetings.
For now, if you have any questions that I can answer, I’m happy to do my best.
- Micheal would have liked to see PCD at tonight’s meeting to speak about the meetings between the group and PCD.
- Michael passed out cards to members to write their questions. Cards will be collected by the FPSENA and sent to the appropriate properties.
- Wants to reform the current development process to make it better, stronger
- Ron Coleman: Fines are applied to buildings that violate codes
- General Member wonders if a CBA would be possible. Michael notes that any CBA agreements
- Third party intermediaries: Both parties have provided their recommendations but PCD is looking at either InvestSTL or Rise. Intermediaries are expensive. Both parties must agree to have one. Would consider fundraising to hire an intermediary, but not at the moment.
- Have been in communication with Alderman Roddy and has been helpful and forthcoming about what he knows and guiding us on some of the process.
- Decision about development must be a community decision, not one by a few residents.
- Going through the mechanisms and being diplomatic about how to go through this process
- In conversations with WashU – he’s interested in good development and there’s isn’t malicious intent to go through with a bad development
- A third party facilitator would help ensure greater community participation; it’s why the group is working hard on this
- Any developer that is selected “needs to engage the neighborhood” and would invite the develop to participate and observe in community meetings
- You can email questions to stlbrowning@gmail.com
7:55 – 8:00 pm Open Forum (FPSE NA, Community)
- Chewning:
- Ice Cream Social was a success
- National Night Out is August 6th.
- We will night have an August meeting.
- Next FPSENA meeting will be July 16
- Dan Scott:
- Wants to responsibly close the Workhouse
- Shared a handout: “The Story of the Workhouse” which is provided below.
- Adelina Mart:
- Raffling off 10 Muny tickets tonight. You can pick up tickets from PCD the day of.
8:00 – 8:05 pm Adjournment (Vincent Chewning)
You can download this month’s meeting minutes below.



















